📷 Klicken Sie auf das Bild, um alle 56 Fotos anzusehen
🎥 Drohnenaufnahmen des Grundstücks
Flug im Uhrzeigersinn
Flug gegen den Uhrzeigersinn
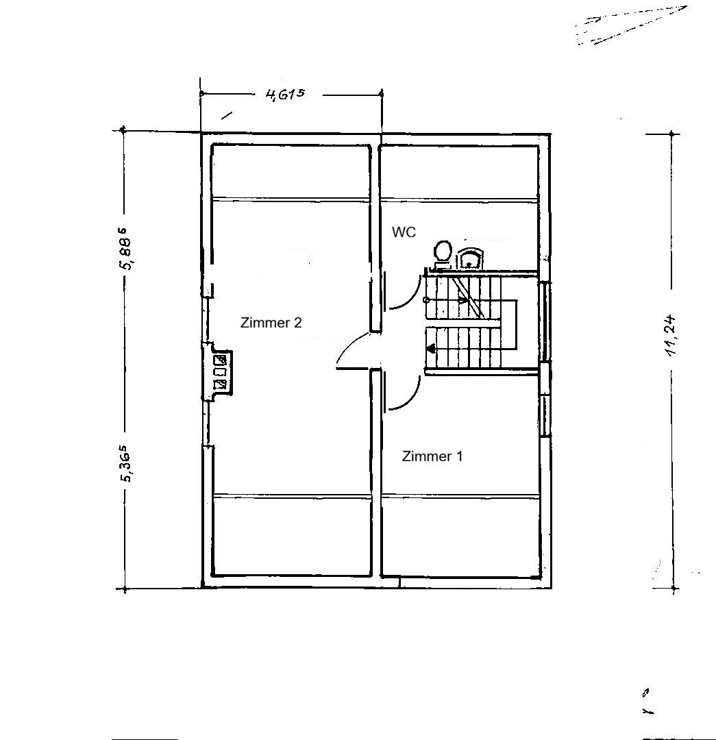
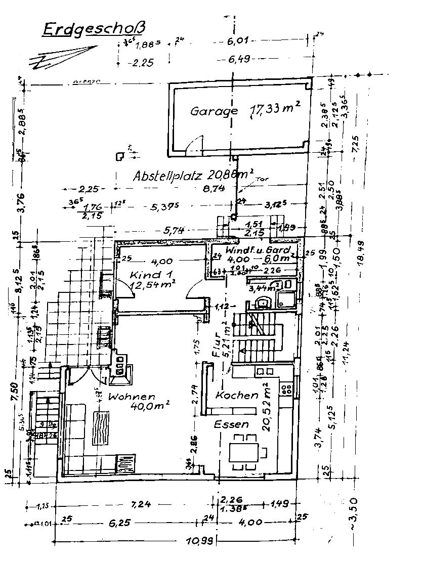
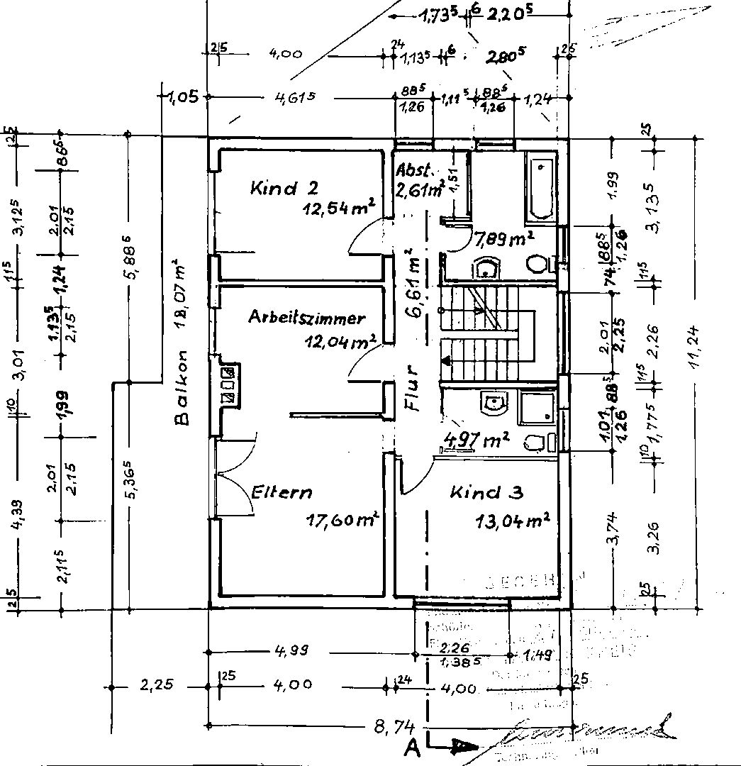
📐 Grundrisse
Erdgeschoss
Obergeschoss
Dachgeschoss
Kellergeschoss
Objektbeschreibung
Willkommen in Ihrem neuen Zuhause! Dieses großzügige Einfamilienhaus bietet auf drei Etagen viel Platz für die ganze Familie. Mit insgesamt 19 Räumen und einem liebevoll angelegten Garten inklusive Teich vereint es modernen Wohnkomfort mit natürlicher Ruhe.
📍 Wichtige Informationen
✨ Besondere Highlights
- ✅ Erstbezug nach Komplettsanierung 2026
- ✅ 3 komplett neu renovierte Badezimmer
- ✅ Moderne Luft-Wasser-Wärmepumpe (Lambda EU13L)
- ✅ Überwiegend dreifach verglaste Fenster
- ✅ Hochwertige Wärmedämmung
- ✅ Treppenlift vom Erdgeschoss ins Obergeschoss
🏠 Raumaufteilung
Erdgeschoss
- Offene Küche mit Esszimmer – 20 m²
- Großzügiges Wohnzimmer – 40 m²
- Zusätzliches Zimmer – 12,5 m²
- Badezimmer – 3,5 m²
- Garderobe/Windfang – 3,5 m²
Obergeschoss
- 4 Schlafzimmer – 12, 17, 12, 12 m²
- 2 Badezimmer – 6,2 m² und 4,9 m²
Dachgeschoss
- 2 weitere Zimmer – 20 m² und 10 m²
- Gäste-WC – 3 m²
Kellergeschoss
- Sauna – 11,2 m²
- Werkstatt – 13 m²
- Großer Hobbyraum – 29 m²
- Ruheraum – 12 m²
- Vorratsraum – 7 m²
- Heizungsraum/Waschküche – 8 m²
🌳 Außenbereich & Lage
- 🌺 Liebevoll angelegter Garten mit Teich – ideal für Hobbygärtner
- 🔇 Absolute Ruhelage am Ende einer Sackgasse
- 🌲 Naturnahes Wohnen mit schneller Anbindung an Kelkheim
- 🚗 Parkplätze auf dem Grundstück
⚡ Energieeffizienz
Energieausweis: Klasse A
Dank moderner Wärmepumpe, dreifach verglasten Fenstern und hochwertiger Dämmung genießen Sie niedrige Heizkosten bei maximaler Wohnqualität.
📋 Eckdaten
Objekt
- Objekttyp: Einfamilienhaus
- Baujahr: 1976 (Saniert 2026)
- Wohnfläche: 211 m²
- Nutzfläche: 88 m²
- Grundstück: ca. 539 m²
Räume
- Schlafzimmer: 6
- Wohnzimmer: 2
- Küche mit Esszimmer: 1
- Badezimmer: 3
- Gäste-WC: 1
- Kellerräume: 6
Ausstattung
- Heizung: Wärmepumpe
- Energie: Klasse A
- Fenster: 3-fach verglast
- Treppenlift: Vorhanden
💰 Kosten
- Kaltmiete: 3.000 €
- Nebenkosten: ca. 250 €
- Heizkosten: ca. 260 €
- Warmmiete: ca. 3.510 €
📅 Verfügbarkeit
Ab April 2026
Mir ist ein harmonisches und lebendiges Mietverhältnis sehr wichtig. Deshalb freue ich mich besonders über Anfragen von Familien oder Wohngemeinschaften, die das Haus mit Leben füllen möchten. Erzählen Sie mir gerne in Ihrer Nachricht, was Sie antreibt – ob es Ihr lebhaftes Familienleben, gemeinsame Hobbys oder Ihre ganz persönliche Vision vom neuen Zuhause ist. So können wir gemeinsam herausfinden, ob wir zueinanderpassen.